Instalações Físicas
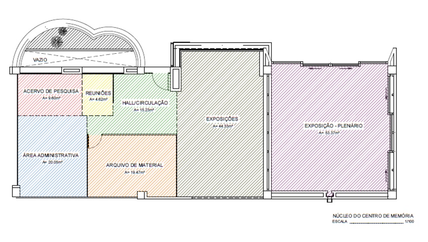
O Centro de Memória Professor Tarcísio Medeiros possui 2 (dois) ambientes, sendo um deles dividido entre atividades administrativas, exposições de curta e longa duração, reserva reserva técnica e espaço de pesquisas; e o outro para a exposição do mobiliário do antigo Plenário do Tribunal.
Ambiente 1
Ambiente 2
O Gabinete da Escola Judiciária

